Beschrijving
UNIEK WONEN IN EEN INSTAPKLAAR 3-KAMERAPPARTEMENT AAN DE ZWOLSE THORBECKEGRACHT
Uniek wonen aan het water, midden in de historische binnenstad van Zwolle? Dit lichte en instapklare 3-kamerappartement ligt op de eerste verdieping van een kleinschalig complex met een schitterend aan de geliefde Thorbeckegracht. Je woont hier op een bijzondere plek: rustig en sfeervol aan de gracht, maar met de levendigheid van de stad op loopafstand.
WAT DIRECT OPVALT?
Het schitterende uitzicht op de Thorbeckegracht, het levendige grachtleven en de historische stadsmuur. Geniet op je balkon van de middag- en avondzon, terwijl je uitkijkt op bootjes, suppers en de oude stad. Binnen is het ruim en licht.
EN DE LOCATIE?
Die is ongeëvenaard. Je woont tegenover het geboortehuis van Johan Rudolph Thorbecke. En op korte loopafstand van alles wat Zwolle zo aantrekkelijk maakt: sterrenrestaurant De Librije, Stadstheater De Spiegel, de gezellige Diezerstraat en een breed aanbod aan winkels, horeca en dagelijkse voorzieningen.
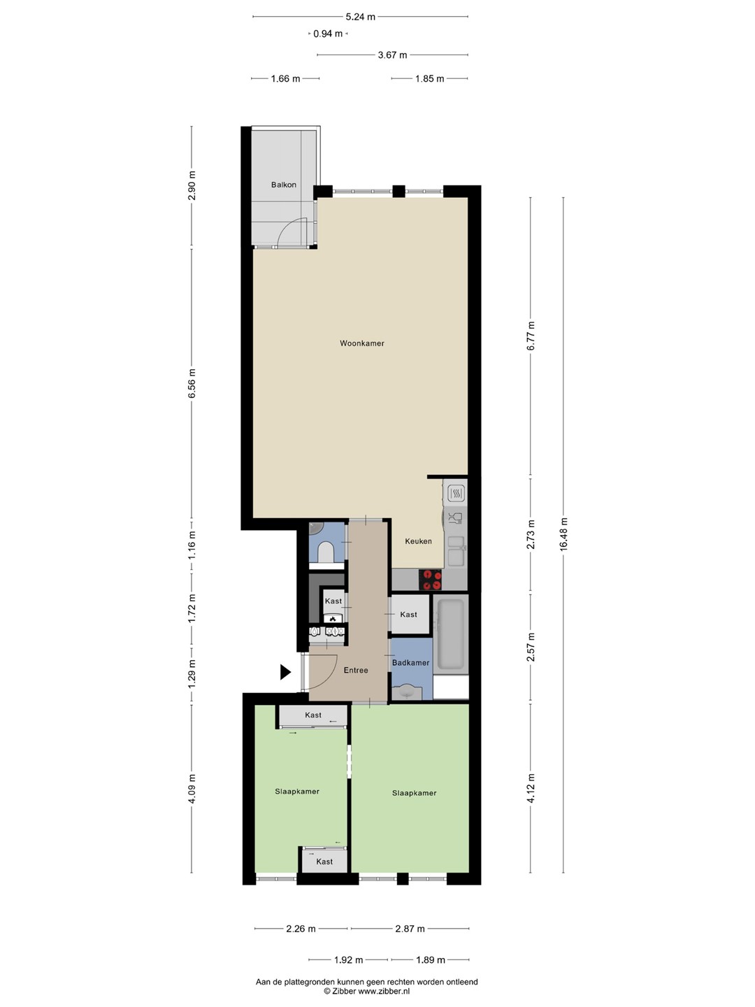
INDELING:
* Entree/hal met meterkast en toilet
* Ruime, lichte woonkamer met grote raampartijen en toegang tot het balkon
* Open keuken met natuurstenen werkblad en inbouwapparatuur: gaskookplaat, afzuigkap, combi-oven, vaatwasser en koelkast
* 2 slaapkamers
* Badkamer met ligbad en wastafelmeubel
* Balkon op het westen
* Eigen fietsenberging in de kelder
KENMERKEN EN PLUSPUNTEN:
* Bouwjaar: 1983
* Gebruiksoppervlakte wonen: 78 M²
* Inhoud: 256 M³
* Verwarming en warm water: Intergas HR-combiketel (2014)
* Energielabel A (geldig tot 09-05-2035)
* Nieuwe laminaatvloer (2025)
* Recent schilderwerk
* Schitterend uitzicht op gracht en stadsmuur
* Balkon op het westen met middag- en avondzon
* Ruime eigen berging in de kelder
* Rustige ligging in hartje centrum – alles op loopafstand
* Dichtbij De Librije, De Spiegel, winkels, horeca en meer
* Kleinschalig complex met actieve en gezonde VvE. VvE-bijdrage: € 140,- per maand
Een stijlvol en instapklaar appartement op een unieke locatie in Zwolle. Hier woon je mooi, rustig én centraal.