Beschrijving
KARAKTERISTIEK JAREN 30 HUIS MET 3 SLAAPKAMERS EN EEN RUIME TUIN
Leef gezellig en stijlvol in dit karakteristieke jaren '30 huis in bijna hartje Zwolle. Gelegen aan de Ruysdaelstraat heeft dit rijtjeshuis het allemaal; karakter, comfort en een gunstige locatie. Het huis is daarnaast netjes onderhouden, heeft 72 m² woonoppervlakte én een ruime tuin. Een perfecte starterswoning dus.
CENTRAAL GELEGEN
Zwolle is een stad met een rijke geschiedenis en levendige cultuur. Er zijn mooie theaters, veel leuke restaurants en er zijn leuke festivals. Het huis ligt in een rustige straat dichtbij het stadscentrum. En heb je dus alle voorzieningen binnen handbereik. Scholen, speeltuinen en winkelcentra liggen op een steenworp afstand waardoor dit gebied ook zeker geschikt is voor gezinnen.
INDELING:
BEGANE GROND:
* Entree/gang met meterkast en ruimte voor de garderobe.
* Woonkamer en suite met massief houten vloer. Het voorste deel van de kamer en suite is in gebruik als woonkamer. De woonkamer heeft een haardpartij (momenteel niet in gebruik) en 2 vaste kasten met paneeldeuren. In het raam voor zit glas-in-lood, aangebracht in dubbel glas. De woonkamer is af te sluiten met een prachtige schuifdeur, voorzien van glas-in-lood.
* Het achterste deel van de en suite is de gezellige woonkeuken. De keukenopstelling is uit 2022 en is voorzien van een inductie kookplaat, afzuigkap, koelkast en vaatwasser.
* Kelderkast.
* wc
* Bijkeuken met wasmachine-aansluiting.
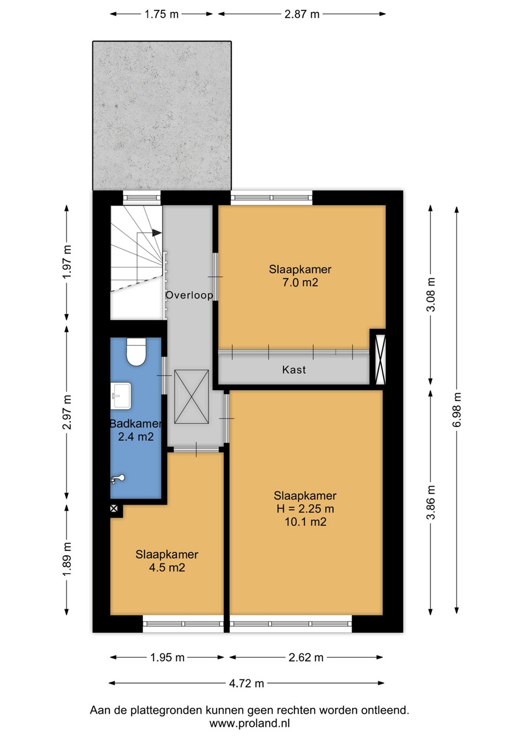
1E VERDIEPING:
* Overloop.
* Slaapkamer aan de achterkant met grote vaste kast.
* 2 slaapkamers aan de voorkant van het huis, waarvan 1 met een een op maat gemaakt bureau.
* Badkamer met douche, wastafel en hangende wc.
VLIERING:
* Bergruimte.
KENMERKEN:
* Bouwjaar 1930
* Gebruiksoppervlakte wonen: 72 m²
* Inhoud: 273 m³
* Perceeloppervlakte: 100 m²
* Verwarming en warm water: Intergas Kombi Kompact HRE (2016)
* Energielabel: D (geldig tot 04-11-2035)
* Buitenschilderwerk: 2025
* Charmant jaren '30 huis
* Glas-in-lood ramen
* Kamer-en-suite
Mis deze kans niet en maak een afspraak om dit prachtige jaren '30 huis in het hart van Zwolle te bekijken. Geniet van de charme en het comfort van dit huis en ontdek alle gemakken die de Ruysdaelstraat te bieden heeft. Neem vandaag nog contact met ons op en maak van dit huis jouw thuis.