Beschrijving
UITGEBOUWDE TUSSENWONING MET ENERGIELABEL A, VLAKBIJ SCHOLEN EN WINKELCENTRUM
Kom snel een kijkje nemen bij deze prachtige eengezinswoning in Stadshagen. Gelegen op een rustige locatie, aan een watertje, is deze woning perfect voor zowel starters als gezinnen. Dit huis is gebouwd in 1999 en heeft een woonoppervlakte van 93 m². Het huis is uitgebouwd, heeft een super sfeervolle woonkamer en open keuken en 3 mooie slaapkamers.
GENIETEN VAN DE BUITENRUIMTE
Geniet van de rust in je eigen tuin. Deze woning biedt niet alleen een achtertuin, maar ook een voortuin. Vanuit de voortuin kijk je uit over de rietkraag langs het water. De achtertuin is gelegen op het zuidoosten en is ca. 11 meter lang en 5 meter breed en heeft een achterom. Daarnaast is er een vrijstaande houten berging voor extra opslagruimte.
FRAAIE LIGGING CENTRAAL IN DE WIJK
Het huis staat het dichtbij het winkelcentrum, waardoor je al je dagelijkse benodigdheden dichtbij huis kunt krijgen. En als je van de natuur houdt, heb je de Milligerplas en de achtergelegen Mastenbroekerpolder, bijna in je achtertuin. Prikkel je nieuwsgierigheid en ontdek alles wat dit fijne huis je te bieden heeft.
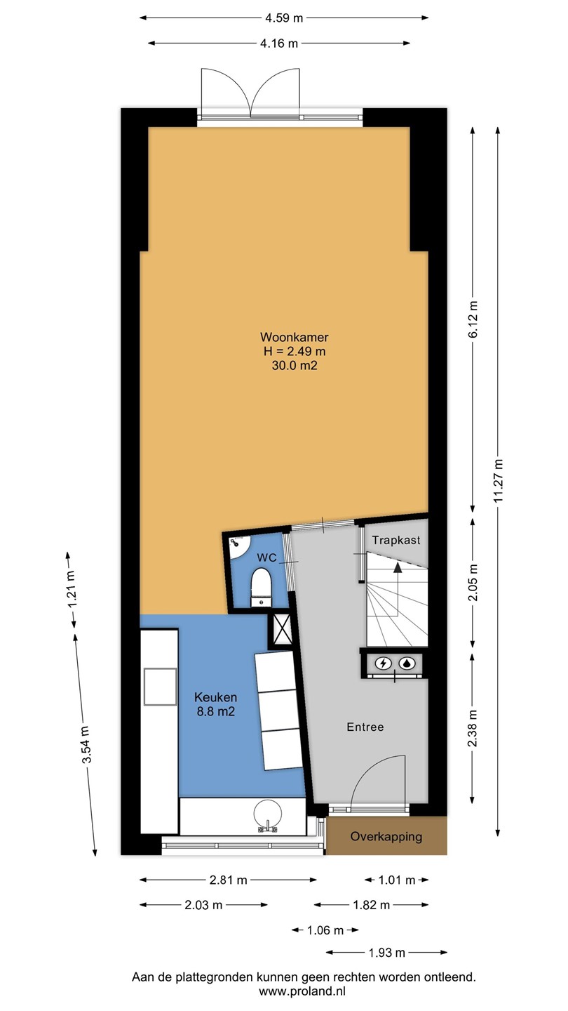
INDELING:
BEGANE GROND:
* Entree/hal met visgraat PVC-vloer (met vloerverwarming), meterkast, garderobe, toiletruimte met wc en fonteintje.
* Lichte en uitgebouwde woonkamer met visgraat PVC-vloer (met vloerverwarming) en openslaande deuren naar de achtertuin.
* Open keuken (2020) met moderne, antracietgrijze inrichting voorzien van inbouwapparatuur zoals: inductie kookplaat, afzuigkap, koelkast, vrieslades, heteluchtoven, vaatwasser en Quooker.
1E VERDIEPING:
* Lichte overloop met lichtkoepel.
* 2 slaapkamers aan de achterkant en 1 slaapkamer aan de voorkant.
* Badkamer met douche, wastafelmeubel, wc en wasmachine-aansluiting.
* Bergkast/stookruimte.
KENMERKEN:
* Bouwjaar: 1999
* Gebruiksoppervlakte wonen: 91 m²
* Inhoud: 344 m³
* Perceeloppervlakte: 131 m²
* Warm water en verwarming: Intergas Kombi Kompakt HRE 36/30 RF (2011)
* Volledig geïsoleerd
* Energielabel A (geldig tot 18-11-2035)
* Nieuwe groepenkast (2020)
* Dakbedekking huis vervangen in 2024
Mis deze perfecte gelegenheid niet en kom dit huis zelf bekijken. Wees er snel bij en neem vandaag nog contact met ons op voor een bezichtiging.