Beschrijving
RUIME EN LICHTE TUSSENWONING IN DE POPULAIRE WIJK WIPSTRIK-NOORD
Wat een fijn en zonnig huis! De ochtendzon aan de voorkant en de avondzon heerlijk in de achtertuin. De royale woonkamer profiteert van grote raampartijen, waardoor het daglicht rijkelijk binnenvalt. En door de grote dakkapel en vaste trap, die verkopers hebben laten aanbrengen, heeft het huis ook op zolder lekker veel ruimte.
FANTASTISCHE LIGGING
De woning ligt aan een rustige straat, vlakbij het Openluchtbad, PEC Zwolle stadion en Isala ziekenhuis. De wijk Wipstrik staat bekend als een van de meest geliefde woonwijken van Zwolle. Met een mix van jaren '30 en '60 huizen, pleintjes en veel groen. Het prachtig gerenoveerde Openluchtbad met monumentale status is een geliefde ontmoetingsplek voor wijkbewoners. Scholen, de buurtsuper en andere voorzieningen liggen op korte afstand. Het stadscentrum en uitvalswegen zijn snel bereikbaar. Kortom, wonen in de Wipstrik betekent comfortabel, groen én centraal wonen.
INDELING:
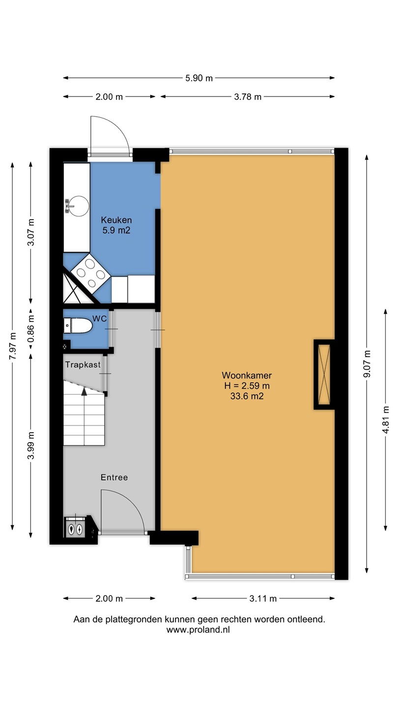
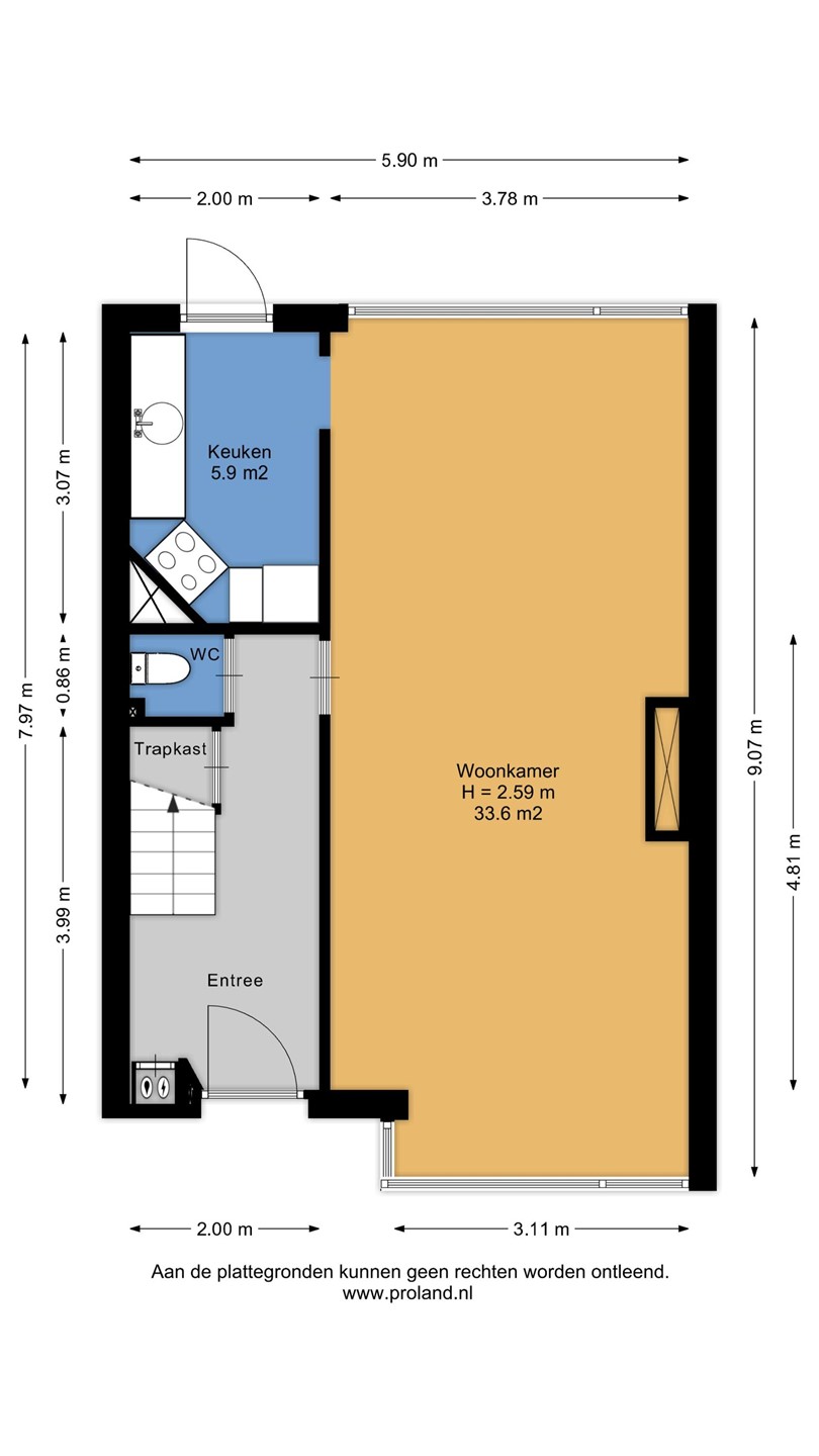
BEGANE GROND:
* Ruime entree met meterkast, trapopgang, kelder en wc.
* Royale en lichte woonkamer met erker, houthaard, laminaatvloer en deur naar de achtertuin.
* Half-open keuken met inbouwapparatuur zoals een gaskookplaat, afzuigkap, oven, magnetron, koelkast en vaatwasser.
1E VERDIEPING:
* Overloop met vaste kast, met daarin de wasmachine-aansluiting. En een inloopkast.
* 3 slaapkamers, waarvan 1 een zonnig balkon heeft. En maar liefst 2 slaapkamers hebben vaste kasten.
* Badkamer met bad/douche, dubbele wastafel, spiegelkast, hangende wc en handdoekradiator.
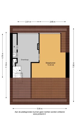
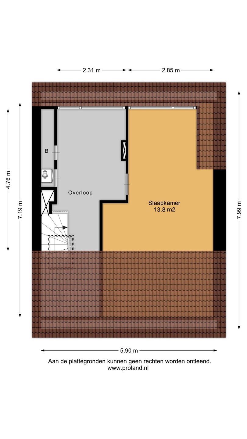
ZOLDERVERDIEPING:
* Ruime overloop/voorzolder met dakkapel (met kunststof kozijnen), C.V.-installatie en bergruimte.
* Grote slaapkamer met dakkapel (met kunststof kozijnen).
KENMERKEN:
* Bouwjaar: 1968
* Gebruiksoppervlakte wonen: 125 m²
* Perceeloppervlakte: 149 m²
* Inhoud: 409 m³
* Verwarming en warm water: Remeha Avanta HR-combiketel (2022) en close in boiler keuken (2022)
* Zonnepanelen: 13 stuks (geplaatst in 2022)
* Vloer-, dak- en spouwmuurisolatie en dubbel glas
* Energielabel: A (geldig tot 18-12-2035)
* Groepenkast vervangen in 2025
* Berging: vrijstaande stenen berging (dakbedekking vervangen in 2025)