Beschrijving
COMFORTABEL WONEN IN DIT FIJNE 3-KAMERAPPARTEMENT AAN HET WATER
Op een schitterende locatie aan het water van het Almelose Kanaal ligt dit ruime 3-kamerappartement van 86 m². Gelegen op de eerste verdieping van appartementencomplex ‘Admiraalsveste’, biedt deze woning een prachtig vrij uitzicht, een zonnig balkon op het zuiden én een eigen parkeerplaats op afgesloten terrein.
ER IS ALTIJD WAT TE ZIEN
De royale woonkamer is heerlijk licht dankzij de grote raampartij aan de waterkant en de 2 zijramen. En biedt een prachtig uitzicht over het water en omliggende groen. Prachtig om de seizoenen te zien veranderen. En 's zomers varen er gezellig bootjes voorbij. Vanuit de woonkamer stap je zo het zonnige balkon op het zuiden op. Een fijne plek om in alle rust te genieten van het weidse uitzicht.
WONEN IN DE GELIEFDE WIJK WIPSTRIK
Het appartement ligt in de populaire wijk Wipstrik, bekend om haar groene karakter, gevarieerde bebouwing en prettige woonklimaat. Het centrum van Zwolle bevindt zich op korte afstand, net als winkels, scholen en andere voorzieningen. Voor ontspanning wandel je zo naar park Park de Wezenlanden.
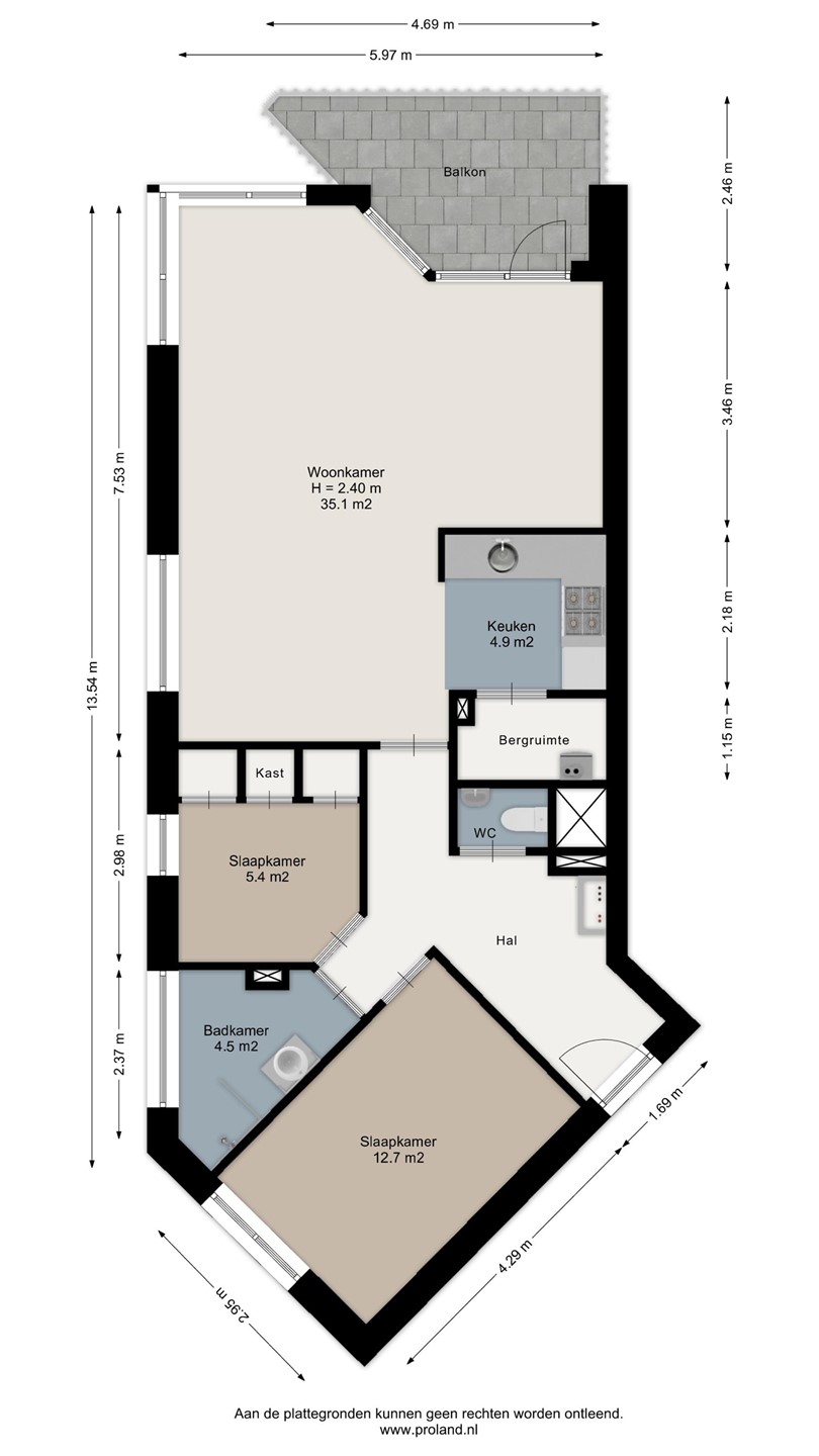
INDELING:
BEGANE GROND:
* Entree/brievenbussen/ bellenbord;
* Lift;
* Fietsenberging;
* Eigen parkeerplaats.
WOONETAGE:
* Entree/hal, meterkast;
* Toiletruimte met wc en fonteintje;
* Ruime en lichte woonkamer met deur naar het balkon;
* Half-open keuken met gedateerde inrichting;
* Bijkeuken met CV-installatie, mechanische ventilatiebox en wasmachine-aansluiting;
* Gang;
* 2 slaapkamers, waarvan 1 met vaste kastenwand;
* Badkamer met douche en wastafelmeubel.
KENMERKEN:
* Bouwjaar: 1995
* Gebruiksoppervlakte wonen: 83 m²
* Inhoud: 263 m³
* Eigen (fietsen)berging: 6 m²
* Balkon (zuid): 7,3 m²
* Warm water en verwarming: Intergas HRE (2011)
* Actieve VvE (maandelijkse bijdrage € 200,87 per maand)
* Eigen parkeerplaats op afgesloten terrein
* Representatieve entree met lift en trappenhuis
* Intercomsysteem met video
* Zonnepanelen op het dak t.b.v. elektra gemeenschappelijke ruimtes