Beschrijving
ZONNIGE EN MODERNE TUSSENWONING MET VRIJ UITZICHT VANUIT DE WOONKAMER
In een rustige wijk aan de Bussenmakerstraat, staat dit fijne gezinshuis. Dat is gebouwd in 1997. Met een comfortabele gebruiksoppervlakte wonen van 124 m² is dit huis perfect voor starters, doorstromers en gezinnen. Daarnaast is het huis energiezuinig met energielabel A.
LOCATIE EN OMGEVING
De woning ligt aan rustige laan met bomen, vrije parkeermogelijkheden en heeft uitzicht op water. Het winkelcentrum van Stadshagen is dichtbij met een aantal grote supermarkten, winkels en een Gezondheidscentrum. Het is een kinderrijke buurt, met speelvoorzieningen, sportaccommodaties en een zwembad. Daarnaast zijn er veel basisscholen en kinderdagverblijven in de nabijheid. Aantrekkelijke locaties als de Milligerplas, het Westerveldse Bos, de Hasselterdijk met het Zwartewater zijn eveneens dichtbij. Daarnaast ben je met de fiets in vijf minuten op Station Zwolle-Stadshagen en binnen een kwartier in de binnenstad.
ENERGIEZUINIG
De woning is volledig geïsoleerd, wat naast een structureel laag energieverbruik zorgt voor koelte in de zomer en warmte in de winter. Daarnaast zijn er in 2022 6 zonnepanelen geïnstalleerd, heeft de achterzijde van de woning sinds 2024 kunststof kozijnen met HR++ glas. En wordt de zonwering op de slaapkamers aangedreven door zonne-energie.
INDELING:
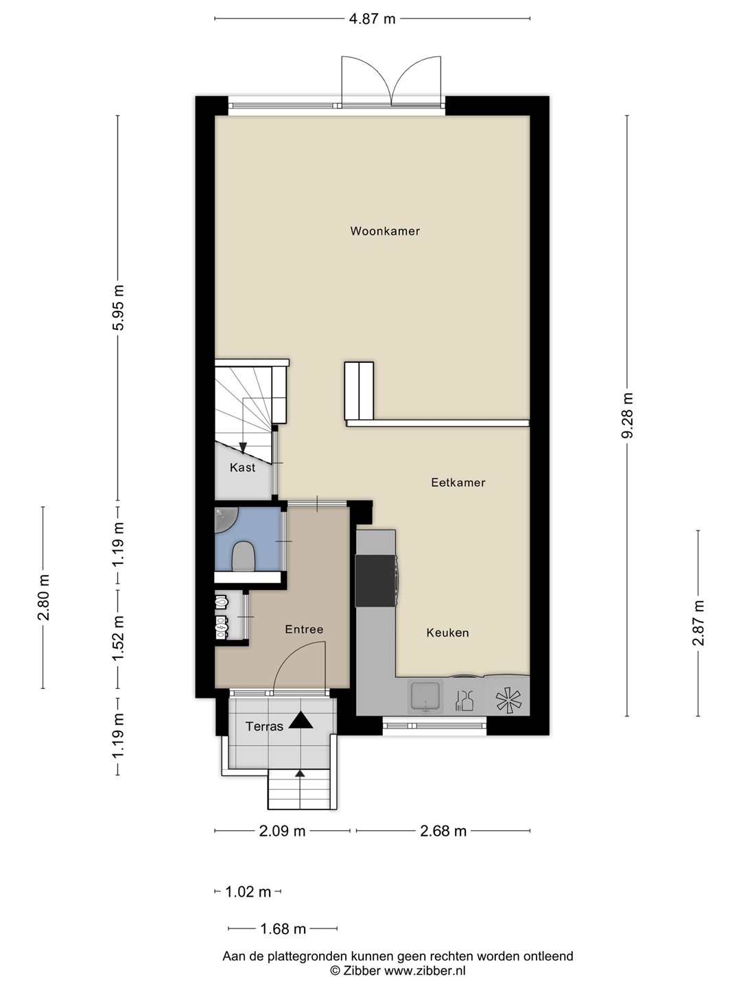
BEGANE GROND:
Deze woonlaag is in 2023 volledig gerenoveerd inclusief vloerverwarming en bestaat uit:
* Entree/hal en visgraat PVC-vloer, meterkast, toiletruimte met hangende wc en fonteintje;
* Woonkamer in unieke split-level met een prachtig hoog plafond en een vrij- en natuurlijk uitzicht vanuit de woonkamer. Bevat onder meer een industriële glasdeur, trapkast, visgraat PVC-vloer en openslaande deuren naar de achtertuin;
* Open keuken voorzien van inbouwapparatuur als: inductie kookplaat, afzuigkap, koelkast, vrieslades, combi-oven en vaatwasser. De eethoek bevindt zich ook in dit gedeelte van het huis.
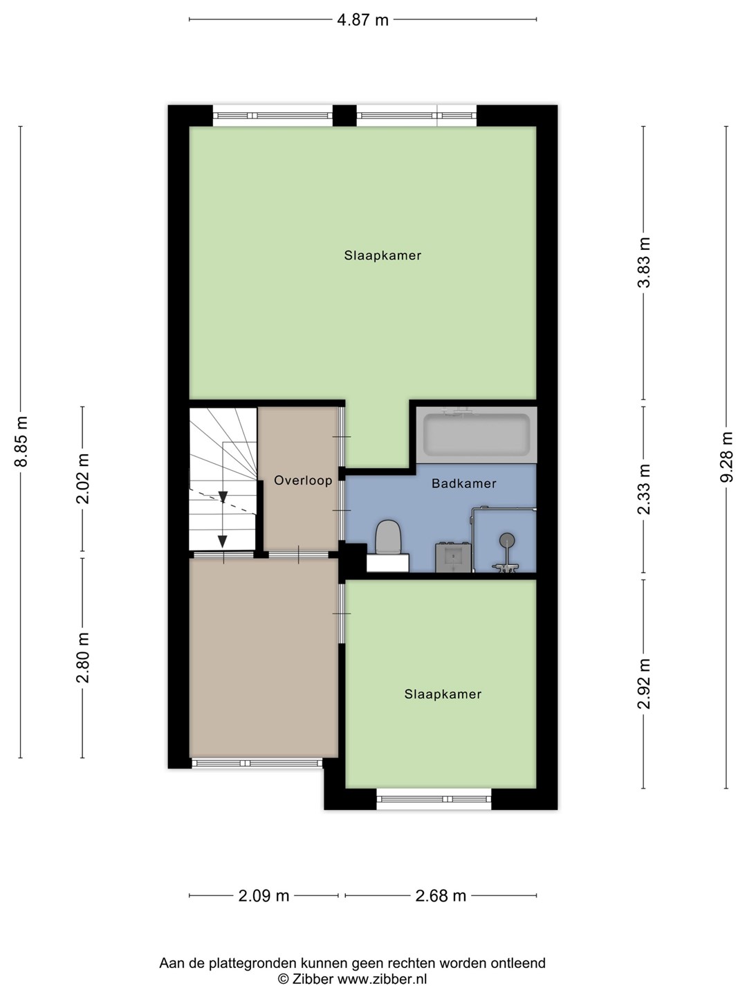
1E VERDIEPING:
* Ruime en lichte overloop, waar optioneel een werkruimte van te maken is.
* 2 mooie slaapkamers, waarvan de grote slaapkamer optioneel in te richten is naar 2 slaapkamers.
* Badkamer met inloopdouche, hangende wc, ligbad en wastafelmeubel.
ZOLDERVERDIEPING:
* Overloop/voorzolder met wasmachine-opstelling, C.V.-installatie, omvormer zonnepanelen en bergruimte.
* Slaapkamer aan de voorkant met een hoog plafond en slaapkamer met dakkapel aan de achterkant en bergruimte.
BUITENRUIMTE:
* Achtertuin op het Zuiden, met 2 terrassen, gazon en vrij uitzicht op het achterliggende groen.
* Achterin de tuin staat een ruime schuur.
* Tuin te bereiken achterom, via meerdere paden in de achterliggende brede steeg.
KENMERKEN:
* Bouwjaar: 1997
* Gebruiksoppervlakte wonen: 124 m²
* Inhoud: 437 m³
* Perceeloppervlakte: 146 m²
* Volledig geïsoleerd
* Energielabel A
* 6 zonnepanelen, vermogen 2.430Wp (2022)
* Verwarming en warm water: Remeha Tzerra HR combiketel (2013)
* Elektrisch knikarm zonnescherm en elektrische zonwering slaapkamers
* Kunststof kozijnen achterzijde en HR++glas
Klinkt deze woning als de plek waar jij naar op zoek bent? Aarzel niet en plan een bezichtiging in. We kijken ernaar uit om je binnenkort te verwelkomen in de Bussenmakerstraat!