Beschrijving
KLAAR OM JE THUIS TE VOELEN IN DIT HEERLIJKE JAREN '30 HUIS?
Kom dan snel kijken naar misschien wel jouw nieuwe thuis in de wijk Wipstrik. Dit huis uit 1933 straalt volop sfeer en authenticiteit uit. Met een woonoppervlak van 115 m², vier slaapkamers en een knusse tuin, is het de perfecte plek voor een koper die op zoek is naar gezelligheid, ruimte en comfort. De woonkamer heeft openslaande deuren naar de tuin om heerlijk van de middag- en avondzon te genieten.
WAT VIND JE IN DE BUURT?
Het huis staat op steenworpafstand van diverse faciliteiten, waaronder scholen, speeltuinensportverenigingen en diverse sportscholen. En als kers op de taart heb je aan de overkant het monumentale Openluchtbad. Handdoekje over de schouder en klaar voor een verfrissende duik in de zomer. Na 10 minuutjes fietsen, sta je middenin het gezellige centrum van Zwolle. Bovendien profiteer je van goede verbindingen met dichtbij de uitvalswegen, zodat woon-/ werkverkeer niet langer een gedoe is.
INDELING:
KELDER:
* Provisieruimte.
BEGANE GROND:
* Entree/vestibule met houten vloer en glas-in-looddeur.
* Gang met meterkast, garderobe en houten vloer. Toiletruimte met hangende wc.
* Woonkamer met erker, houten vloer, houtkachel en openslaande deuren.
* Keuken met glas-in-looddeur, in lichte kleurstelling, graniet aanrechtblad en inbouwapparatuur zoals: 5-pits gasfornuis met een fijne grote oven, afzuigschouw, koelkast en vaatwasser.
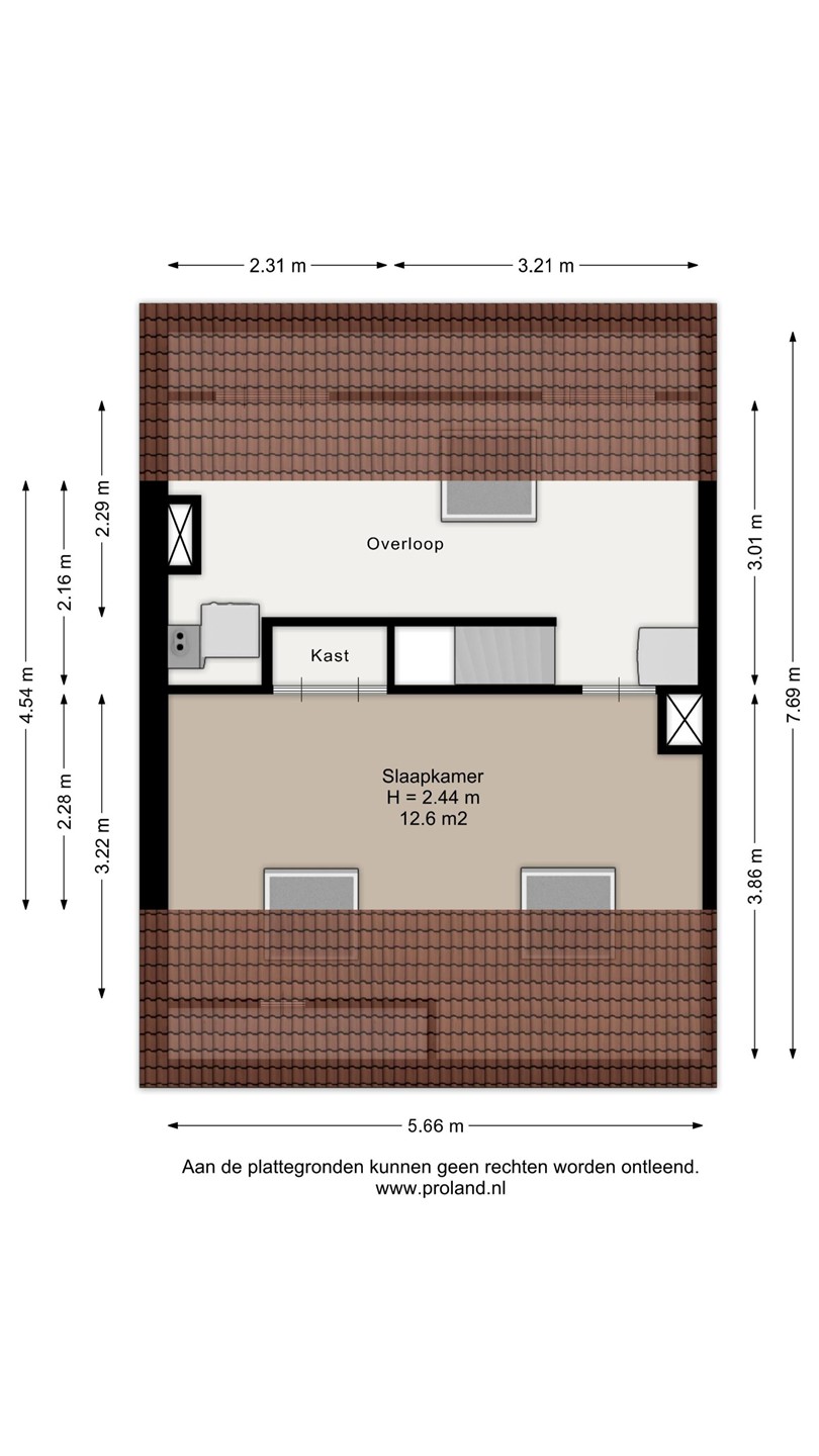
1E VERDIEPING:
* Overloop.
* 2 slaapkamers aan de voorkant. Beide met een vaste kast.
* Slaapkamer aan de achterkant met een vaste kast en toegang tot het balkon.
* Badkamer met inloopdouche, wastafelmeubel en hangende wc (2025).
ZOLDERVERDIEPING:
* Overloop/voorzolder met dakraam, wasmachine-opstelling en C.V.-installatie. (Aan deze kant zou een dakkapel ook een mooie en goede toevoeging zijn, om nog een extra kamer te creëren.
* Slaapkamer met 2 dakramen en karakteristieke inbouwkast met kruisroedes.
KENMERKEN:
* Bouwjaar: 1933
* Gebruiksoppervlakte wonen: 115 m²
* Perceeloppervlakte: 144 m²
* Inhoud: 413 m³
* Warm water en verwarming: Intergas HRE 28/24 CW4 (2023)
* Isolatie: vloer- en dakisolatie en dubbel glas
* Energielabel C (geldig tot 24-02-2036)
* Achtertuin met middag- en avondzon
* Ruime schuur en achterom
Maak vandaag nog een afspraak voor een bezichtiging en ontdek zelf wat Brederostraat 95 jou allemaal te bieden heeft. Wacht niet te lang, want woningen in deze populaire wijk zijn snel weg. We kijken uit naar je komst!