Beschrijving

KARAKTERISTIEK JAREN '30 HUIS MET 5 SLAAPKAMERS, COMFORT, ENERGIELABEL B ÉN RONDOM IN HET GROEN
Welkom aan Jupiterstraat 23. Een supercharmant, karakteristiek jaren '30 huis, waar authentieke details en hedendaags wooncomfort hand in hand gaan. Deze verrassend ruime tussenwoning met 120 m² gebruiksoppervlakte wonen ligt in een rustige straat met veel bomen aan de voor- en achterkant. Vanuit de erker heb je vrij uitzicht op al het groen in de straat. De Jupiterstraat is een erg gezellige straat, waar men naar elkaar omkijkt. 

SFEER, SFEER, SFEER
Zodra je de voordeur opent, valt je oog op de prachtige eikenhouten visgraatvloer in de vestibule en gang. Een stijlvolle binnenkomer, die meteen de toon zet voor de rest van het huis. Authentieke glas-in-loodramen zorgen voor een warme lichtinval en benadrukken het karakter van deze woning. De ruime woonkamer is ook voorzien van een eiken visgraat parketvloer en openslaande deuren naar de zonnige achtertuin. 

CENTRAAL GELEGEN
De ligging is echt ideaal; een rustige straat met veel groen. Maar toch dichtbij alles wat je nodig hebt. Supermarkten,  scholen, een kinderboerderij, meerdere speeltuinen en sportvoorzieningen zijn allemaal binnen handbereik. Het huis staat daarnaast nog eens op loopafstand van winkels, het bruisende stadscentrum én uitvalswegen. 

INDELING:

KELDER:
* Provisie-/ bergruimte

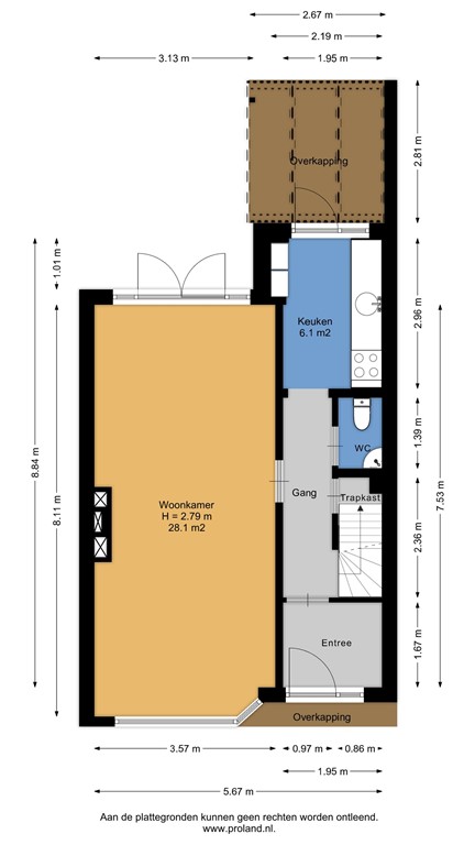
BEGANE GROND:
* Entree/vestibule met eikenhouten visgraat vloer, meterkast en garderobe.
* Gang met eikenhouten visgraat vloer, toiletruimte met wc en fonteintje.
* Ruime en lichte doorzonkamer met schouw, die momenteel niet in gebruik is ten behoeve van een houtkachel of iets dergelijks. Daarnaast heeft de woonkamer een eikenhouten visgraat vloer, erker en openslaande deuren (2020) naar de achtertuin.
* Keuken met inbouwapparatuur, waaronder: 4-pits gaskookplaat, afzuigkap, vaatwasser, koelkast en combi-oven.

1E VERDIEPING:
* Overloop met karakteristieke balustrade.
* 3 slaapkamers, waarvan de ouderslaapkamer een grote kastenwand heeft.
* Badkamer met douche, hangende wc, wastafelmeubel en deur naar het balkon

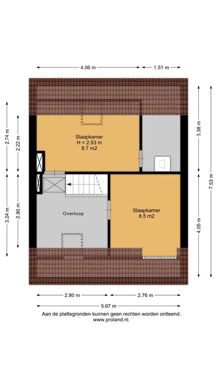
ZOLDERVERDIEPING:
* Ruime overloop met dakraam en bergruimte achter het knieschot.
* Slaapkamer met dakkapel aan de voorkant en bergruimte achter het knieschot.
* Slaapkamer met dakraam aan de achterkant en bergruimte achter het knieschot.
* Was-/ stookruimte.
* Bergvliering.

BUITENRUIMTE:
* Zonnige achtertuin van maar liefst 15 meter diep.
* Houten tuinberging.
* Achterom.

KENMERKEN:
* Bouwjaar 1934 
* Gebruiksoppervlakte wonen: 120 m² 
* Inhoud: 425 m³
* Perceeloppervlakte: 176 m²
* Verwarming en warm water: Intergas HRE combiketel (2017)
* Energielabel B (geldig tot 09-06-2035)
* 5 zonnepanelen
* Isolatie: dubbele beglazing en dakisolatie
* Schilderwerk buiten (en deels binnen): 2024

Laat je verrassen door de sfeer, ruimte, het groen en de ligging van dit prachtige huis. Jupiterstraat 23 is een huis waar je je direct thuis voelt. Maak snel een afspraak voor een bezichtiging!

Kenmerken